사업분야

(주)아이렉스

페이지 정보

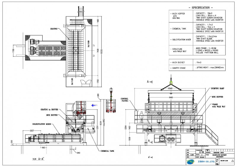
고화처리설비

본문

 

TBM(터널 보링 머신) 고화처리설비는 터널 굴착 작업에서 발생하는 고형물(주로 그라우트나 폐기물)을 처리하는 장비입니다. TBM은 터널을 굴착할 때, 그라우트를 사용하여 터널 벽을 안정화시키고, 굴착 과정에서 발생하는 물과 진흙 등을 배출합니다. 이러한 고형물은 즉시 처리해야 하며, 이때 사용되는 것이 고화처리 설비입니다.

 

 

TBM 고화처리 설비의 주요 기능

  

    ● 그라우트 고화 처리 : TBM 굴착 과정에서 발생한 그라우트나 폐기물(예: 물과 혼합된 시멘트, 흙 등)을 

                                        고화시켜 고형화하는 장비입니다. 

                                        이를 통해 처리된 고형물은 더 이상 유동성이 없어져 

                                        안전하게 처리 및 배출할 수 있습니다.

 

    ● 환경 보호 : 고화처리 설비는 폐기물이 환경에 미치는 영향을 최소화합니다. 

                          고화된 물질은 부피가 줄어들고, 이를 안전하게 처리할 수 있기 때문에 

                          터널 굴착 현장에서 환경 오염을 방지하는 중요한 역할을 합니다.

 

    ● 재활용 : 일부 고화처리 설비는 고화된 물질을 재활용할 수 있는 기능도 제공하며, 

                      예를 들어 시멘트와 같은 재료는 다시 건설용 자재로 활용될 수 있습니다.

 

    ● 부유물 제거 : 물과 진흙이 섞인 상태로 고화되지 않은 물질은 고화처리 설비에서 고형화하여, 

                             물질이 고체 상태로 변화하도록 처리됩니다. 이로써 운반 및 처리가 용이해집니다.

 

 

 

 

TBM 고화처리 설비의 구성 요소

  

    ● 믹서 및 반응기 : 굴착 작업 중 발생하는 폐수와 그라우트 혼합물을 고화시키기 위한 믹서 및 반응기가 

                                  설치됩니다.

    

    ● 필터 및 압축기 : 고화된 물질을 압축하여 부피를 줄이고, 필터를 통해 불순물을 제거합니다.

    

    ● 배출 시스템 : 고화된 물질은 배출 구멍을 통해 안전하게 처리 시설로 운반되거나, 재활용을 위해 

                             저장됩니다.

    

    ● 모니터링 시스템 : 고화처리 과정에서의 품질을 모니터링하는 시스템이 있어, 고화가 제대로 이루어지고 

                                  있는지 확인할 수 있습니다.

 

 

 

 

TBM 고화처리 설비의 중요성

 

    ● 작업 현장의 안전성 : 굴착 과정에서 발생한 물과 폐기물의 안전한 처리 없이는 

                                        현장의 안전이 위협받을 수 있습니다. 고화처리 설비는 이를 해결합니다.

 

    ● 환경 보호 : 불완전하게 처리된 폐기물은 환경 오염을 초래할 수 있기 때문에, 

                          고화처리 설비는 환경 보호에 중요한 역할을 합니다.

 

    ● 효율성 증대 : 고화처리 설비는 폐기물 처리 과정을 효율적으로 관리하며, 

                             현장 운영에 필요한 시간과 비용을 절감할 수 있습니다.

고화 2.png

 

고화 3.png

 

고화 4.png

 

고화 5.png

 

고화 6.png

 

 

(주)아이렉스
대표자 : 손승장 사업자등록번호 : 603-81-65795 대표전화 : 051-206-8910 FAX : 051-206-3337 E-Mail : irexco@naver.com
주소 : 부산시 사하구 하신번영로 135, 403호 (신평빌딩 4층)
Copyright © 2026 아이렉스. All rights reserved.
Designed By ADS&SOFT.